2 Bed House/Villa for sale
Camposol, Murcia, Region of Murcia, Spain
Full Description
Situated on a quiet residential street on C sector Camposol, just a short walk to the Club De Golf, and the surrounding countryside this villa has great potential and is in a great location.
The property benefits from two vehicle access points: one gated entrance and a second open ac-cess leading to a shaded carport. To the right of the drive, a small door provides access to the under build, currently used for storage. At the rear, two low-level steps lead up to the back of the property.
To the rear of the villa, there is a paved garden area ideal for relaxing and outdoor lounging, offering ample space for the installation of a private pool if desired. This space presents an excellent opportunity to create a stunning pool and entertainment area, with endless potential to tailor it to your lifestyle. A further garden area is laid with shale for ease of maintenance and features a selection of fruit trees. A winding path leads around the property, connecting to the parking area on the opposite side of the villa.
The rear terrace is accessed via low-level marble steps, complemented by a decorative balustrade and handrail. The terrace has been fully glazed, creating additional living space suitable for year-round use. Access to the villa is through a traditional Spanish wooden door, complete with a reja.
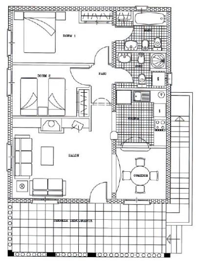
The front door opens directly into a welcoming lounge. The room features a log-burning fire set in a decorative fireplace with shelving, while a wall-mounted radiator and dual A.C ensure comfort throughout the year. Dual-aspect windows, fitted with blackout blinds and rejas, allow for plenty of natural light and ventilation.
A large decorative archway provides access into the dining area.
The dining room offers ample space for a table and chairs, comfortably accommodating up to six people. A wall-mounted radiator ensures warmth during the cooler months, while a window fitted with a blackout blind and reja allows natural light to fill the room.
The kitchen is accessed via a decorative archway from the lounge and offers a good range of base and wall-mounted units. It is equipped with a gas hob, electric oven, stainless steel sink, and provides ample workspace. From the kitchen, a small hallway to the right; complete with a wall-mounted radiator leads to the two bedrooms and the family bathroom.
Two generously sized double bedrooms with built-in storage, the master bedrooms boasts an ensuite shower room.
The family shower room is fully tiled for convenience and features a shower cubicle with a curtain, a W.C, and a pedestal sink. A wall-mounted cabinet provides storage, while a frosted glass window ensures natural light and ventilation. Additionally, the room includes plumbing connections for a washing machine.
A tiled external staircase at the side of the villa provides access to the rooftop solarium, which also features practical under-stair storage housing the central heating boiler. The solarium offers ample space for loungers, or even a hot tub making it the perfect spot to relax with family and friends while enjoying the fabulous views of the distant mountains.
Read more