Premium New development

4 Bed Property for sale

Almancil, Algarve, Portugal

£1,224,204 *  [€1,400,000]

4 Bed Property for sale

Almancil, Algarve, Portugal

£1,224,204 *  [€1,400,000]

Property Details


  • Bedrooms: 4
  • Bathrooms: 3
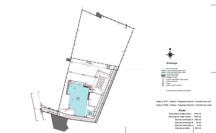
  • Plot size: 2777 m2
  • Habitable space: 298 m2

Features


  • Swimming pool
  • Energy Certificate: E

Full Description


Located in the heart of Almancil, this detached villa with an adjoining plot presents a rare investment opportunity in one of the Algarves most sought-after areas. The property includes an existing house in need of renovation and a second plot with potential for an additional build, offering flexibility for either redevelopment or expansion. Its central position makes it ideal for those seeking a project that combines location, scale, and long-term value.
The existing villa provides a solid base for renovation, with scope to redesign or rebuild according to modern living standards while retaining the authenticity of the original structure. The adjoining plot allows for the construction of a second property, giving investors and developers a chance to create a tailored project whether two standalone villas or a residence with extended grounds.
Set within walking distance of Almancils vibrant centre, the property benefits from excellent access to everyday amenities, including shops, cafés, restaurants, and essential services. The proximity to the luxury resorts of Quinta do Lago and Vale do Lobo, as well as the regions renowned golf courses and beaches, enhances its appeal to both local and international buyers looking for an exclusive base in the Algarve.
With Faro International Airport just 20 minutes away, this property represents a strategic opportunity for those looking to invest in an area where development potential and lifestyle value meet. Whether restored as a private home or redeveloped into a pair of modern villas, this site offers a rare chance to shape a high-return investment in the central Algarve.
Features and fittings mentioned are subject to agreement and verification between the vendor and the buyer

Energy rating: E

- Prime location in central Almancil
- Detached villa requiring renovation
- Second adjoining plot with build potential
- Ideal for redevelopment or expansion project
- Walking distance to shops, cafés, and restaurants
- Short drive to Quinta do Lago and Vale do Lobo
- Easy access to golf courses and golden beaches
- 20 minutes from Faro International Airport
- Excellent investment potential in the Algarve
- Opportunity to create two luxury villas or a family estate

- REF: FC525GTM
Read more

Map may not show exact location

This property listing (ref: FC525GTM) is an advertisement supplied by Fine and Country Algarve and does not constitute property particulars. While aplaceinthesun.com (APITS Ltd.) requests all advertisers supply correct details, it does not carry out checks on the information supplied and cannot be held responsible for any inaccuracies. Aplaceinthesun.com recommends seeking independent legal advice prior to any overseas property purchase.
*Based on an exchange rate of 0.8744 from Euro to GBP. This rate is updated daily and is an indicative market rate supplied by A Place in the Sun Currency. Actual trading rates vary.