Premium New development

3 Bed Villa for sale

Limassol, Limassol, Cyprus

£1,332,398 *  [€1,520,000]

3 Bed Villa for sale

Limassol, Limassol, Cyprus

£1,332,398 *  [€1,520,000]

Property Details


  • Bedrooms: 3
  • Bathrooms: 3
  • Plot size: 695 m2
  • Habitable space: 249 m2

Full Description


Off plan 3 bedroom villa at new golf and spa resort of Limassol.

With easy access to the highway and private schools of Limassol, this unbelievable Project is located just moments away from Limassol’s stretch of sandy beach “Lady’s Mile”. It is also adjacent to the largest casino resort in the Mediterranean and is only a short 10-minute drive away from Limassol Marina and the city centre.

Under construction
Delivery - 24 months from contract signing.
Price is subject to 19% VAT

Villa features:
Internal covered area 200m²
Covered terraces 49m²
Parking spaces 2
Uncovered terraces 76m²
Total covered - 249m2

— Large plot with breath-taking golf course and lake views.
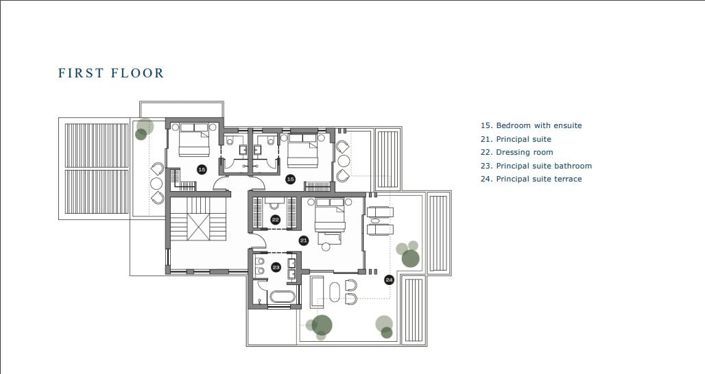
— All bedrooms are ensuite. Principal suite with dedicated dressing room and bathroom with his & hers vanity.
— Staff bedroom & bathroom.
— Eco-friendly design featuring double glazing, solar panels, provision for electric vehicle charging.
— High Ceilings. Wide and tall window and door openings.
— High standard kitchen cabinets/wardrobes/sanitary ware from European brands. Security and fireproof entrance door.
— VRV air cooling system & under floor heating.
— Home automations (smart-home technology) – optional upgrades available.

PROJECT OVERVIEW & FACILITIES
?Developed over 1.4 million m2.
?18-hole championship golf course with a state-of-the-art Clubhouse.
?500 villas and 250 apartments to be developed in phases.
?Property management services offered, including concierge, resales, rentals and full property maintenance.
?Commercial facilities including shops, restaurants, bars etc.
?Wellness Centre with an outdoor pool, spa treatment facilities, fitness area, yoga and meditation lawns.
?Tennis, basketball courts and cycleways.
?Children’s playgrounds.
?Open-air amphitheatre.
?Herb garden.

THE GOLF COURSE
—Unique scenery next to the largest Salt Lake on the island.
—Engulfing the resort at 6,404 metres.
—18-hole Championship Course.
—Feature ponds, olive and carob trees, distinctive of the Mediterranean flora.
—Designed by the renowned master golf architect CabellRobinson.
—The course features opulent Bermuda grass, generous fairways, surging greens and astonishing pot bunkers .
—Holes 5 and 6, set in a natural wetland.
—State of the art Clubhouse.
—Exclusive Members Area.
—Panoramic Restaurant.
—Rooftop bar.

THE LIFESTYLE
—Inspired by the Cypriot countryside and an authentic island lifestyle.
—A shared space for the community of residents to meet over coffee or a drink, dining and shopping.
—Includes a children’s playground for full family security and relaxation.
—Ten kilometres of cycleways through a lusciously green landscape.
—Three tennis courts found within the resort’s Green belt.
—Basketball court.
—Yoga lawn.
—Herb garden.
—Bird watching towers.
Read more

Map may not show exact location

This property listing (ref: CY-LGSL98) is an advertisement supplied by Sunshine Luxury Villas and does not constitute property particulars. While aplaceinthesun.com (APITS Ltd.) requests all advertisers supply correct details, it does not carry out checks on the information supplied and cannot be held responsible for any inaccuracies. Aplaceinthesun.com recommends seeking independent legal advice prior to any overseas property purchase.
*Based on an exchange rate of 0.8766 from Euro to GBP. This rate is updated daily and is an indicative market rate supplied by A Place in the Sun Currency. Actual trading rates vary.