Premium New development

4 Bed Country House for sale

Spoleto, Perugia, Umbria, Italy

£941,258 *  [€1,080,000]

4 Bed Country House for sale

Spoleto, Perugia, Umbria, Italy

£941,258 *  [€1,080,000]

Property Details


  • Bedrooms: 4
  • Bathrooms: 4
  • Plot size: 19500 m2
  • Habitable space: 483 m2

Features


  • Pool
  • Restored

Full Description


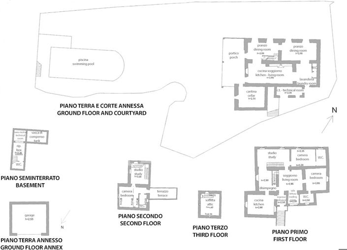
In a hilly position, on the edge of a small village but with total privacy, we find this beautiful stone farmhouse with dovecote tower dating back to 1800, completely renovated, with a beautiful garden of around 8,000 sqm with centuries-old oak trees, bushes of various essences, hedges and lawn, bordered from a small, very well-maintained Mediterranean scrub forest. Set in the lawn we find a beautiful infinity pool of 15 x 6.5 meters delimited by a terracotta solarium, with an underground technical room also including a storage room and bathroom. Nearby there is a well with automatic irrigation system. The property includes land cultivated with olive groves, a wooded area and a vegetable garden for a total of approximately 1.1 hectares. Entering the property through an electrified gate with video intercom and walking along a beautiful avenue, you arrive at the farmhouse and the partially underground 40 sqm garage overlooking it. The farmhouse is spread over four levels. On the ground floor we find a beautiful 50 sqm porch with wood-burning oven, access to the cellar and to the residence consisting of a rustic lounge with beautiful stone fireplace, kitchen, toilet and dining rooms with internal staircase to the upper floor. On the first floor, which is also accessed by an external staircase and covered loggia, we find a kitchen, a large living room/study area, two bedrooms with ensuite bathroom. From the living room you go up to the second floor which includes a bedroom with bathroom, a terrace and a study with an iron and wooden staircase leading to the third floor, the typical dovecote tower of the typical farmhouses of the Spoleto valley from the 18th/19th century, where it is it is possible to create a fourth bedroom.

STATE OF REPAIR
The farmhouse is in excellent condition, it was completely renovated in the 90's with well-made materials, the ceilings on the ground floor and in the living area of ??the remaining floors are made of wood, the window frames are made of wood with double glazing, railings in iron and wooden doors, internal doors in solid walnut, heating system with methane boiler, aluminum radiators with zone valves on the various floors.

UTILITIES
The property is served by all utilities, electricity network, methane gas and public aqueduct, and private well.

USE AND POTENTIAL USES
The property is surrounded by nature, in a hilly position but at the same time close to a city, such as Spoleto, rich in monumental, architectural and naturalistic beauties, which offers every type of amenity as well as the possibility of participating in important and prestigious cultural events. This allows the property to be perfect both as a main residence and as a holiday home.

LOCATION
Nestled among olive trees and near a village, from its hilly position overlooking the Umbrian countryside, the property is just 10 minutes from the center of Spoleto, a renowned tourist city of art. The property is also not far from other Umbrian villages and historic centers of undisputed beauty and fame: 20 km from Trevi, about 30 from Spello, 45 from Assisi, about 50 from Todi and about 60 from Perugia. Rome is also easily reachable, in about 1 hour and a half, both by car and by train.

LAND REGISTRY DETAILS
The Great Estate group carries out a technical due diligence on each property acquired, through the seller's technician, which allows us to know in detail the urban and cadastral status of the property. This due diligence may be requested by the customer at the time of a real interest in the property.

Read more

Map may not show exact location

This property listing (ref: 8769) is an advertisement supplied by Great Estate Immobiliare Srl and does not constitute property particulars. While aplaceinthesun.com (APITS Ltd.) requests all advertisers supply correct details, it does not carry out checks on the information supplied and cannot be held responsible for any inaccuracies. Aplaceinthesun.com recommends seeking independent legal advice prior to any overseas property purchase.
*Based on an exchange rate of 0.8715 from Euro to GBP. This rate is updated daily and is an indicative market rate supplied by A Place in the Sun Currency. Actual trading rates vary.