Premium New development

3 Bed Villa for sale

Vinuela, Malaga, Andalucia, Spain

£371,049 *  [€425,000]

3 Bed Villa for sale

Vinuela, Malaga, Andalucia, Spain

£371,049 *  [€425,000]

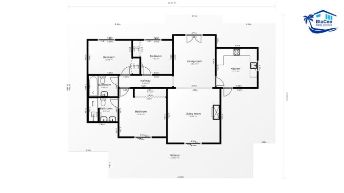
Property Details


  • Bedrooms: 3
  • Bathrooms: 3
  • Plot size: 6392 m2
  • Habitable space: 187 m2

Features


  • Countryside views
  • Fitted wardrobes
  • Garage
  • Pet friendly
  • Fireplace
  • Private pool
  • Fitted kitchen
  • Family friendly
Read more

Full Description


For sale one level villa Viñuela
Exclusive to BluCee Real Estate
This villa, is set in a peaceful and private location near Lake Viñuela in Málaga. Just off the A356 between Viñuela and Riogordo, the property is easy to access yet enjoys complete privacy. It sits on 6392m² of land with low-maintenance gardens and open countryside views across to the lake.

Built 23 years ago, this Andalucian villa is all on one-level and designed for comfortable living. A private driveway leads down to the property with parking for at least 4 cars.

The double arched front doors (a stunning feature) open into a bright sitting room with high ceilings, a wood-burning fireplace, and sliding doors to the rear garden. Ceiling fans keep the space cool throughout the warmer months.

The modern kitchen includes granite worktops, a gas hob, electric oven, microwave, dishwasher, and fridge/freezer. There is plenty of storage and direct access to a covered terrace, perfect for outdoor dining while enjoying the views.

The master bedroom features fitted wardrobes, sliding doors to the terrace, a ceiling fan, and an en-suite bathroom with walk-in shower, double sinks, and heated towel rail. Two further double bedrooms, both with fitted wardrobes and ceiling fans, share a family bathroom with a bathtub and overhead shower.

Outside, the property offers a private swimming pool, with an outdoor shower. There is a garage with a washing machine and guest toilet for pool and garden use, plus additional off-road parking. All doors have fly screens, and windows are fitted with persianas.

This villa for sale in La Viñuela combines privacy, accessibility, and excellent indoor-outdoor living.

About the area
The villa is located close to Viñuela and Riogordo in the Axarquía region of Málaga, surrounded by beautiful countryside and just 25 minutes from the beaches of Torre del Mar. The area is ideal for walking, cycling, and exploring traditional white villages. Málaga city and airport are approximately 45 minutes away, offering easy connections throughout Europe.

In compliance with Decree 218/2005, of 11 October, approving the Regulation on Consumer Information on the sale of homes in Andalusia. The client is informed that the notarial, registry and fiscal expenses that are applicable (ITP or VAT + AJD) and other expenses inherent to the sale, are not included in the price.
Read more

Map may not show exact location

This property listing (ref: 120052) is an advertisement supplied by BluCee Real Estate and does not constitute property particulars. While aplaceinthesun.com (APITS Ltd.) requests all advertisers supply correct details, it does not carry out checks on the information supplied and cannot be held responsible for any inaccuracies. Aplaceinthesun.com recommends seeking independent legal advice prior to any overseas property purchase.
*Based on an exchange rate of 0.8731 from Euro to GBP. This rate is updated daily and is an indicative market rate supplied by A Place in the Sun Currency. Actual trading rates vary.