Premium New development
Back to results

4 Bed Property for sale

Novalja, Lika-Senj, Croatia

£783,494 *  [€900,000]

4 Bed Property for sale

Novalja, Lika-Senj, Croatia

£783,494 *  [€900,000]

Property Details


  • Bedrooms: 4
  • Bathrooms: 3

Full Description


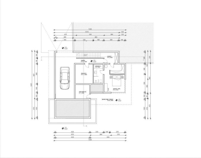
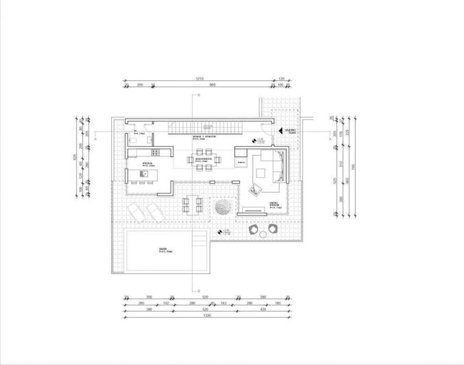
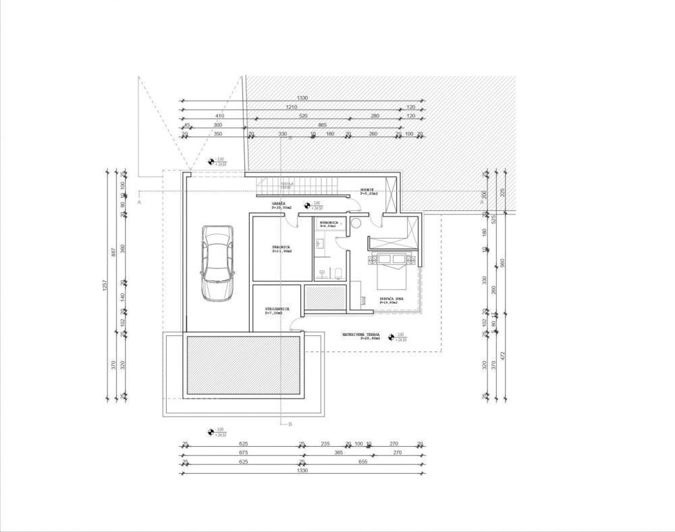
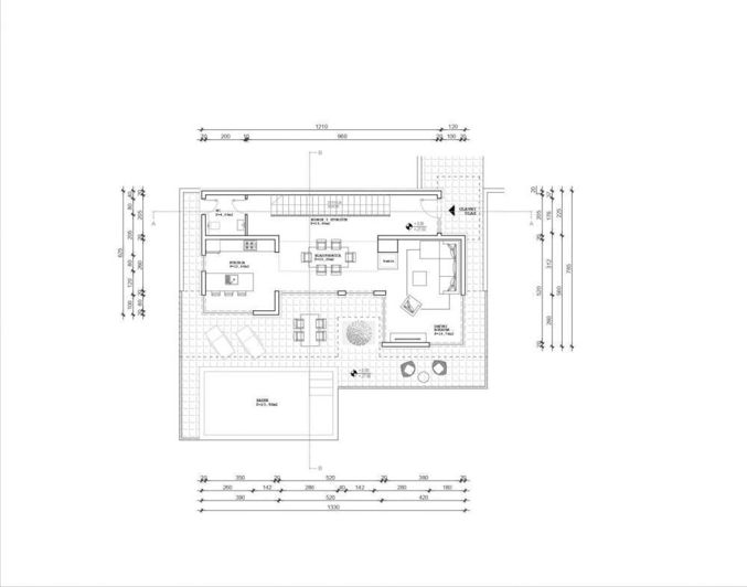
Modern villa with pool under construction on the island of Pag in JAKIŠNICA, 200 meters from the sea only!
Total area of villa is 312 sq.m. Land plot is 290 sq.m.
The villa is divided into three floors where in the basement we find a garage, laundry, engine room, storage room and one bedroom with wardrobe and bathroom.
On the ground floor we have guest toilets, kitchen with dining room and living room with direct access to the covered terrace, garden and pool.
On the upper floor we find two bedrooms with bathrooms and balconies with a total living area of 312m2.
The villa will be sold turnkey by a proven investor with many years of experience in construction. Only the best materials and equipment will be used, first-class ceramics, aluminum three-layer joinery, anti-burglary doors from renowned manufacturers, etc.
The planned phase of completion and moving in is one year. Ref: RE-U-13495Overall additional expenses borne by the Buyer of real estate in Croatia are around 7% of property cost in total, which includes: property transfer tax (3% of property value), agency/brokerage commission (3%+VAT on commission), advocate fee (cca 1%), notary fee, court registration fee and official certified translation expenses. Agency/brokerage agreement is signed prior to visiting properties.Property advantages: Garage, Storage, Garden, Modern
Read more

Map may not show exact location

This property listing (ref: RE-U-13495) is an advertisement supplied by ADRIONIKA CONSULTANCY and does not constitute property particulars. While aplaceinthesun.com (APITS Ltd.) requests all advertisers supply correct details, it does not carry out checks on the information supplied and cannot be held responsible for any inaccuracies. Aplaceinthesun.com recommends seeking independent legal advice prior to any overseas property purchase.
*Based on an exchange rate of 0.8705 from Euro to GBP. This rate is updated daily and is an indicative market rate supplied by A Place in the Sun Currency. Actual trading rates vary.