Premium New development

3 Bed Property for sale

San Roque, Cadiz, Andalucia, Spain

£702,109 *  [€799,000]

3 Bed Property for sale

San Roque, Cadiz, Andalucia, Spain

£702,109 *  [€799,000]

Property Details


  • Bedrooms: 3
  • Bathrooms: 2

Features


  • Air conditioner
  • Built-in wardrobes
  • Rooftop terrace
  • Good condition
  • Central heating
  • Furnished kitchen
  • Equipped kitchen
  • Building with parking lot
  • Outdoor
  • Gym
  • Garden
  • Community garden
  • Laundry
  • Bright
  • Parking
  • Communal swimming pool
  • Garage included
  • Terrace
  • Private urbanization
  • Security 24h
  • Golf views
  • Sea views
Read more

Full Description


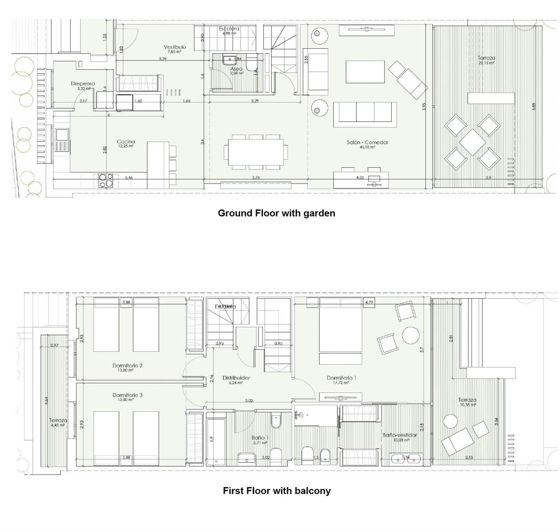
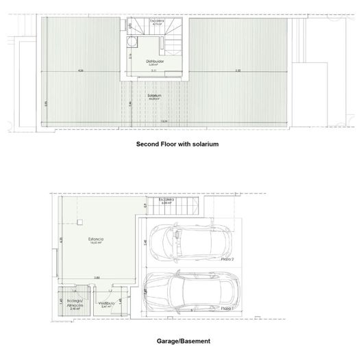
This exceptional townhouse, completed in 2022, offers contemporary living with stunning views of the prestigious San Roque Golf Club. With 180 m² of usable space, whether you're looking for a dream vacation home or a permanent residence, this property has it all. Featuring 3 spacious bedrooms, a stylish living and dining area, an open-concept kitchen, 2 bathrooms, a guest toilet, as well as storage space and 2 garage spaces, this home combines comfort and practicality.

The ground floor boasts a bright and airy living room that opens up to a large west-facing terrace and private garden, perfect for outdoor gatherings, with stunning views of the golf course. The sleek, modern kitchen is fully equipped with high-end appliances. Also on this level, you’ll find a convenient guest WC and a useful storage room. Upstairs, the master bedroom comes with an en-suite bathroom and a private glazed balcony overlooking the golf course. Two additional well-sized bedrooms share a bathroom with a bathtub, and have access to a balcony with views of the community pool.

The spacious rooftop terrace, offers panoramic views of the sparkling sea, the well-maintained golf course, and the community area. Large, modern windows with aluminum frames flood the home with natural light, while an energy-efficient heat pump system ensures comfort throughout the year.

Situated in a secure, gated community with 24-hour security, this property offers both luxury and peace of mind. The complex features a gym, sauna, and a communal pool, all surrounded by beautifully landscaped gardens and cork oak trees. Located in a peaceful setting, it’s just a short drive from Alcaidesa Beach and Sotogrande Marina.

This is a rare opportunity to live in one of the most sought-after locations in Spain. Don’t miss your chance to own this exceptional property!
Read more

Map may not show exact location

This property listing (ref: DirectHoyo17.11) is an advertisement supplied by Alcantara & Good and does not constitute property particulars. While aplaceinthesun.com (APITS Ltd.) requests all advertisers supply correct details, it does not carry out checks on the information supplied and cannot be held responsible for any inaccuracies. Aplaceinthesun.com recommends seeking independent legal advice prior to any overseas property purchase.
*Based on an exchange rate of 0.8787 from Euro to GBP. This rate is updated daily and is an indicative market rate supplied by A Place in the Sun Currency. Actual trading rates vary.