Premium New development

2 Bed House for sale

Alvaiázere, Leiria, Portugal

£59,309 *  [€67,500]

2 Bed House for sale

Alvaiázere, Leiria, Portugal

£59,309 *  [€67,500]

Property Details


  • Bedrooms: 2
  • Bathrooms: 2
  • Plot size: 1678 m2
  • Habitable space: 110 m2

Features


  • Double Glass
  • Energy performance certificate – Exempt

Full Description


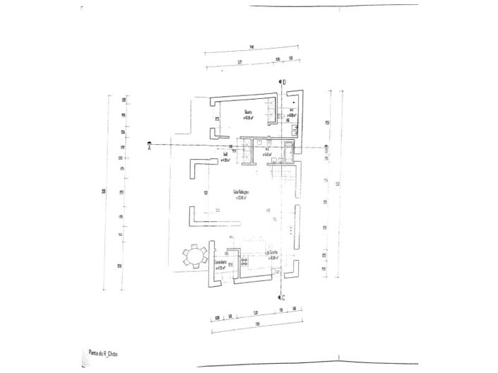
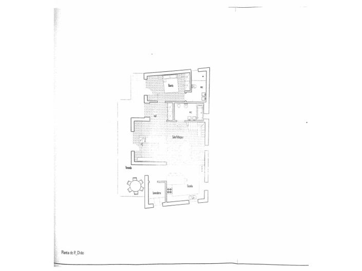
Old traditional farmhouse, for renovation with approved planning permission, to renovate into a modern style bungalow. The project comprises a spacious open plan lounge, dining area and kitchen with 2 bathrooms (one of them being the en-suite) & double bedroom with built-in wardrobes. There's also a garage, with a covered alfresco sitting area in the plans. The property is situated in quiet tranquil countryside area, well served by roads and close to amenities.
90-min drive from Lisbon Airport; 25-min drive from Tomar; 70-min drive from Atlantic coast
Project details:
Total plot area. - 1.678,20sq m
Footprint area of main house. -145.45sq m
Footprint area of Annex -62.20sq m
Total Footprint area - 207.65sq m
Total construction area -217.15sq m
Living area including balconies - 139.80sq m
Indoors living area -86.70sq m
Volumetria do edifício - 825.17cu m
Fascia height -3.80m
Please enquire within for more details
Energy Rating: Exempt
#ref: 811/25
Read more

Map may not show exact location

This property listing (ref: 811/25) is an advertisement supplied by Chavetejo Estate Agents and does not constitute property particulars. While aplaceinthesun.com (APITS Ltd.) requests all advertisers supply correct details, it does not carry out checks on the information supplied and cannot be held responsible for any inaccuracies. Aplaceinthesun.com recommends seeking independent legal advice prior to any overseas property purchase.
*Based on an exchange rate of 0.8787 from Euro to GBP. This rate is updated daily and is an indicative market rate supplied by A Place in the Sun Currency. Actual trading rates vary.