Premium New development
Back to results

3 Bed Country Property for sale

Civitanova Marche, Macerata, Le Marche, Italy

£696,439 *  [€800,000]

3 Bed Country Property for sale

Civitanova Marche, Macerata, Le Marche, Italy

£696,439 *  [€800,000]

Property Details


  • Bedrooms: 3
  • Bathrooms: 2
  • Consumption: G
  • Plot size: 28000 m2
  • Habitable space: 193 m2

Features


  • SEA VIEW
  • EASY ACCESS

Full Description


CIVITANOVA MARCHE - SEA VIEW FARMHOUSE WITH ANEXA AND LAND. FOR SALE.
In the Municipality of Civitanova Marche, exactly in Contrada Castelletta, Quattropareti offers for sale a rural complex consisting of a house, warehouses, barn and adjacent land.
The property, located in a quiet and panoramic area, consists of a house on two floors of approx. 210 dating back to the time of construction, of the warehouses / cellars of approx. 240, a detached barn of approx. 140, all with adjacent land of approx. 28,000 completely arable land.
The property has direct access from an asphalted road with little traffic.
The sea is about 3 km away, and the center of Civitanova is about 4 km away.

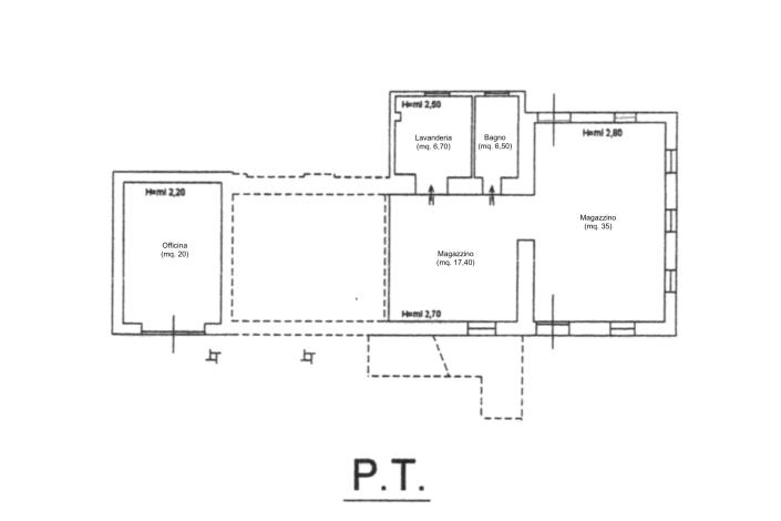
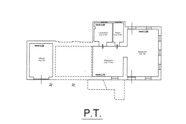
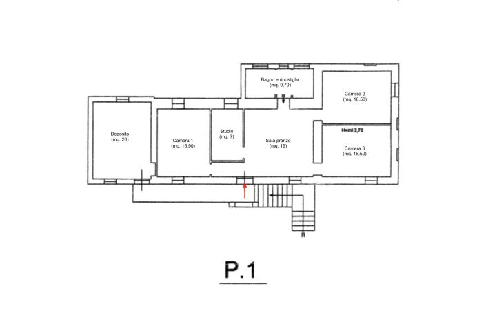
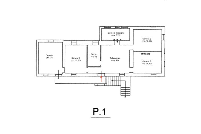
DIVISION OF ROOMS AND REAL SURFACES

Ground floor:
Living room with fireplace sqm. 15.30;
Kitchen sqm. 8.20;
Warehouse 1 sqm. 17.40;
Warehouse 2 sqm. 35.00;
Laundry sqm. 6.70;
Bathroom sqm. 6.50;
Workshop sqm. 20.00;

First floor:
Entrance sqm. 2.90;
Dining room with fireplace sqm. 19.00;
Room 1 sqm. 15.90;
Room 2 sqm. 16.50;
Room 3 sqm. 16.50;
Bathroom and closet sqm. 9.70;
Deposit sqm. 20.00.

The property is completed by the warehouses of approx. 240 and the barn of approx. 140.

In order to be able to organize a constructive appointment with our Agent, please ask us in advance for all the information you deem necessary to obtain a sufficiently clear picture of the property. For more information you can contact the number 335/5414826 or write to here

QUATTROPARETI is a reality present in the area for over 40 years, specializing in quality residences.
We are looking for PROPERTIES for SALE for our customers, if you want to sell contact us immediately
Read more

Map may not show exact location

This property listing (ref: CASTELLETTA) is an advertisement supplied by Quattropareti.com and does not constitute property particulars. While aplaceinthesun.com (APITS Ltd.) requests all advertisers supply correct details, it does not carry out checks on the information supplied and cannot be held responsible for any inaccuracies. Aplaceinthesun.com recommends seeking independent legal advice prior to any overseas property purchase.
*Based on an exchange rate of 0.8705 from Euro to GBP. This rate is updated daily and is an indicative market rate supplied by A Place in the Sun Currency. Actual trading rates vary.