Premium New development

Property for sale

Lagos, Lagos, Algarve, Portugal

£506,860 *  [€580,000]

Property for sale

Lagos, Lagos, Algarve, Portugal

£506,860 *  [€580,000]

Property Details


  • Bedrooms: 0
  • Bathrooms: 0

Features


  • Beach
  • Electricity
  • Forest
  • Green areas
  • Industrial
  • Marina
  • Outside Lights
  • Public Water Network
  • Residential
  • Sanitation
Read more

Full Description


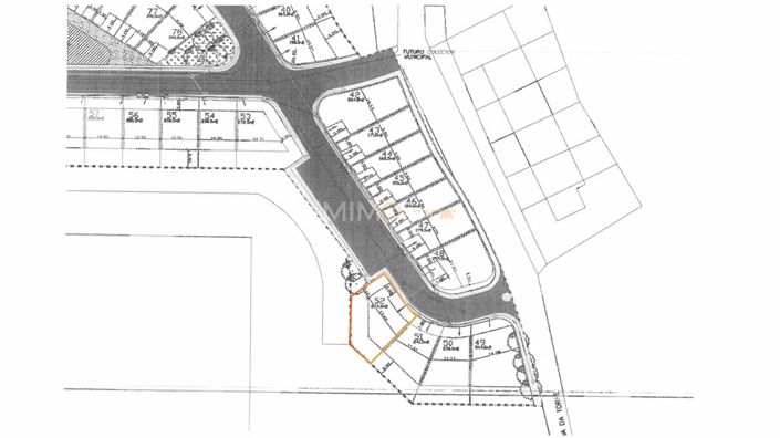
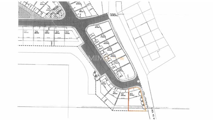
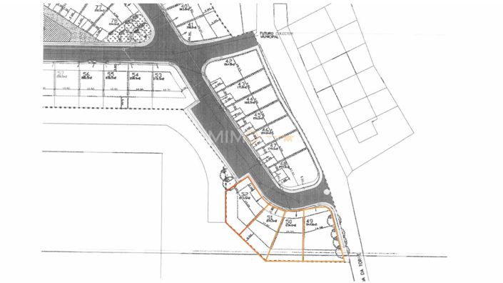
Land with Approved Project – 1,106 m² | Lagos
Excellent investment opportunity! Land with 1,106 m², located just minutes from Lagos city center, with quick access to main roads. Situated in a growing area, close to Pinheiral Industrial Park and Retail Park, offering high appreciation potential.

Approved Subdivision Project
Divided into 4 independent lots, ideal for housing or commercial use: Lot 1: 256 m² | Footprint: 150 m² | Buildable area: 200 m² Lot 2: 241.5 m² | Footprint: 150 m² | Buildable area: 200 m² Lot 3: 274.5 m² | Footprint: 150 m² | Buildable area: 200 m² Lot 4: 334 m² | Footprint: 150 m² | Buildable area: 200 m²Highlights Strategic location Approved project for 4 houses Area with full infrastructure Residential or commercial potential Sale as a whole or by individual lotsDon’t miss this opportunity! Contact us for more info or to schedule a visit.
Read more

Map may not show exact location

This property listing (ref: T321) is an advertisement supplied by Mimosa Properties and does not constitute property particulars. While aplaceinthesun.com (APITS Ltd.) requests all advertisers supply correct details, it does not carry out checks on the information supplied and cannot be held responsible for any inaccuracies. Aplaceinthesun.com recommends seeking independent legal advice prior to any overseas property purchase.
*Based on an exchange rate of 0.8739 from Euro to GBP. This rate is updated daily and is an indicative market rate supplied by A Place in the Sun Currency. Actual trading rates vary.