Premium New development
Back to results

4 Bed Villa for sale

Cape Greco, Famagusta, Cyprus

£1,044,659 *  [€1,200,000]

4 Bed Villa for sale

Cape Greco, Famagusta, Cyprus

£1,044,659 *  [€1,200,000]

Property Details


  • Bedrooms: 4
  • Bathrooms: 4

Full Description


Four Bedroom Detached Villa For Sale in Cavo Greco, Protaras, Famagusta - Title Deeds (New Build Process)

PRICE REDUCTION !! (was €1,350,000 + VAT)

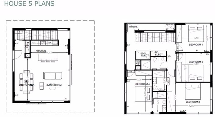
Last remaining 4 Bedroom Villa !! - H05

What sets this project apart is the incorporation of ecological elements, driven by a vision of sustainability, and the overall sensation of harmoniously coexisting within the natural environment. The architecture echoes nature’s grace. Each villa, a masterpiece of design, blends seamlessly with the environment. The project is comprised of 5 Eco-Lux Villas, each with 4 or 5 bedrooms, open space living & an infinity swimming pool. Nestled next to the pristine Cavo Greco National Park, the villas are more than a residence; it’s Eco-Lux Living with a commitment to environmental stewardship. With a vision to preserve the untouched beauty of its surroundings and emerges as a sanctuary that seamlessly integrates with the natural landscape, offering a lifestyle that is both opulent and ecologically responsible. Its exceptional location provides breathtaking views of the unspoiled coastline in one of Cyprus’s most renowned areas.

Villas 2, 3 or 5

- 2 Bedrooms with ensuite facilities and fitted wardrobes

- 2 Bedrooms with fitted wardrobes

- Open plan living, dining and kitchen area

- Fully fitted kitchen

- Family bathroom

- Guest WC

- Provisions for air conditioning

- Unfurnished

- Covered parking

- Optional roof terrace

- Private infinity swimming pool

- Internal 158-169 m²

- Covered veranda 14-27 m²

- Plot 450-550 m²

- Sea views

- 3 Minutes to the local shops and amenities

- 3 Minutes to the beach

- 4 Minutes to Protaras

- 5 Minutes Cavo Greco National Park

- 12 Minutes to Ayia Napa

- 45 Minutes to Larnaca International Airport

- Suitable for Cyprus Permanent Residency - Fast Track

- Subject to VAT

- Energy Efficiency A

Cape Greco

Cape Greco is a headland in the south eastern part of the island and lies between the towns of Ayia Napa & Protaras and is home to the area’s National Park. It is a gorgeous natural haven, attracting visitors to the area’s spectacular sea caves, with the rocky headland laced with sandy coves. The main beach is Konnos Bay and properties in the area offer you the opportunity to be both close to the sea and have amazing views.
Read more

Map may not show exact location

This property listing (ref: 12494696) is an advertisement supplied by Cyprus Emerald and does not constitute property particulars. While aplaceinthesun.com (APITS Ltd.) requests all advertisers supply correct details, it does not carry out checks on the information supplied and cannot be held responsible for any inaccuracies. Aplaceinthesun.com recommends seeking independent legal advice prior to any overseas property purchase.
*Based on an exchange rate of 0.8705 from Euro to GBP. This rate is updated daily and is an indicative market rate supplied by A Place in the Sun Currency. Actual trading rates vary.