Premium New development

Plot for sale

Stalida, Heraklion, Crete, Greece

£966,353 *  [€1,100,000]

Plot for sale

Stalida, Heraklion, Crete, Greece

£966,353 *  [€1,100,000]

Property Details


  • Bedrooms: 0
  • Bathrooms: 0

Features


  • Plot size: 2914 m2
  • Build up to 1503 m2
  • Road access
  • Amenities nearby

Full Description


Building plot of 2914 m2 inside the seaside tourist resort of Stalida at the north coast of Crete, right between the established tourist resorts of Malia and Chersonissos, only a 3-minute walk to the nearest organized sandy beach.

The land is totally flat and easy to build on.
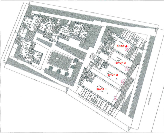
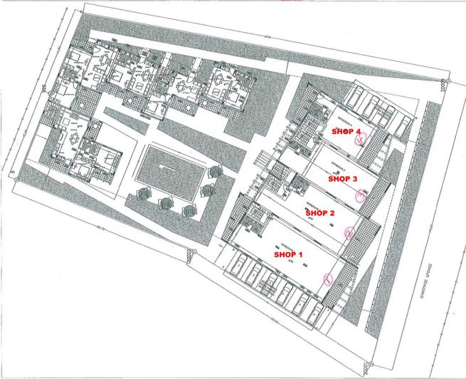
It already has a building license for 15 tourist apartments of 991 m2 in total + 608 m2 of basement and 4 shops of 512 m2 in total (total building size: 1503 m2 on two floors + 608 m2 basement). The building license is valid until the end of 2025 with the possibility to modify the plans or to draw entirely new plans and apply for a new building license.

The land has excellent road access and all services (electricity, water, telephone and broadband internet lines) are available right next door.

Since the plot is positioned right inside the tourist village of Stalida, it is surrounded by all sorts of amenities (shops, car rental, restaurants, bars, etc.) and in easy walking distance (270m) to the nearest organized sandy beach.

The larger tourist towns of Chersonissos and Malia are only a very short drive away.
The international airport of Heraklion is only about a 20-minute drive from the plot.

 
Read more

Map may not show exact location

This property listing (ref: 4D-PLSTA1k) is an advertisement supplied by Buy and Sell Estate Agency and does not constitute property particulars. While aplaceinthesun.com (APITS Ltd.) requests all advertisers supply correct details, it does not carry out checks on the information supplied and cannot be held responsible for any inaccuracies. Aplaceinthesun.com recommends seeking independent legal advice prior to any overseas property purchase.
*Based on an exchange rate of 0.8785 from Euro to GBP. This rate is updated daily and is an indicative market rate supplied by A Place in the Sun Currency. Actual trading rates vary.