Premium New development
Back to results

2 Bed Apartment for sale

Sarnano, Macerata, Le Marche, Italy

£41,351 *  [€47,500]

2 Bed Apartment for sale

Sarnano, Macerata, Le Marche, Italy

£41,351 *  [€47,500]

Property Details


  • Bedrooms: 2
  • Bathrooms: 2
  • Consumption: G
  • Habitable space: 70 m2

Features


  • Character Building
  • Structurally restored 2024
  • Fireplace
  • In the historic center
  • 1 hour from Airport
  • 45 minutes from the coast
Read more

Full Description


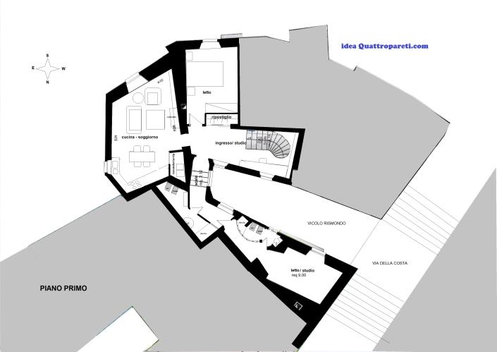
APARTMENT IN HISTORIC CENTER IN THE PORTION OF THE DEFENSIVE TOWER OF BARBACANE
Apartment for sale . Sarnano mc PRICE €65,000
In the south-eastern part of the historic center of Sarnano near the ancient and characteristic Via della Costa and close to the Vicolo Rismondo Quattropareti.com offers for sale an apartment of approx. 90 conventional sq.m. just renovated for the structural part and in a portion forming part of the ancient defensive tower of Barbacane and Bertesca.
The apartment occupies the highest part of the tower although access from the alley is a single easy flight of stairs developed in a semicircle, accessible from street level.
The entrance on Vicolo Rismondo, one of the most picturesque alleys in the center, is a succession of arches and terracotta staircases, the apartment is spread over two staggered floors partly above the alley to develop on two bodies of different buildings.
The staircase leads directly onto a large hallway which gives access to a living room with a small fireplace, a large bedroom with large internal bathroom occupying the oldest part of the tower;
A corridor with 4 steps above the alley presents an area now set up for the kitchen, a toilet and the ancient Study/Bedroom with vaulted ceiling renovated in the structure and decorations.
The house is equipped with independent methane heating, latest generation boiler and cast iron radiators. The doors and window frames date back to the 1950s/60s and replacement is recommended in the case of permanent residence.
To complete the property, on the ground floor opposite the entrance door there is a separate warehouse room of approx. 20.
DIVISION OF ROOMS AND REAL SURFACES
Ground floor:
Cellar / warehouse: sq.m. 20.00
Stair way: sq.m.. 3.19
First floor:
hallway: sq.m. . 10.81
living room: sq.m.. 14.09
bedroom : sqm. 16.23
bathroom: sq.m.. 7.45
corridor/staircase: sq.m. 2.12
kitchen: sq.m. 6.00
corridor: sq.m. 2.80
toilet: sq.m. 1.10
bedroom/study: sq.m.. 9.00
In order to be able to organize a constructive appointment with our representative, please ask us in advance for all the information you deem necessary to obtain a sufficiently clear picture of the Property.
Read more

Map may not show exact location

This property listing (ref: Spagnuolo) is an advertisement supplied by Quattropareti.com and does not constitute property particulars. While aplaceinthesun.com (APITS Ltd.) requests all advertisers supply correct details, it does not carry out checks on the information supplied and cannot be held responsible for any inaccuracies. Aplaceinthesun.com recommends seeking independent legal advice prior to any overseas property purchase.
*Based on an exchange rate of 0.8705 from Euro to GBP. This rate is updated daily and is an indicative market rate supplied by A Place in the Sun Currency. Actual trading rates vary.